The Meredith is a lovely split-foyer model featuring 4 bedrooms and 3 full baths with approximately 1,800 sq. ft. of living space. The plan consists of an open living area and kitchen space on main level, spacious bedrooms and additional living space on bottom level. This layout allow for flexible living space and is great for a first-time home buyer or growing family.



When you purchase a plan, you receive a Construction License that gives you certain rights in building the home depicted in that plan.
CONSTRUCTION DRAWINGS (most plans)
Cover Page. Each home plan features the front elevation and informative reference sections including, general notes and design criteria*, abbreviations, and symbols for your plan.
Elevations. Scaled elevations for the front, rear, and sides are provided. All elevations are detailed, and an aerial view of the roof is provided.
Foundations. Foundations are fully engineered for each design, whether slab or basement.
Main Level Floor Plan. The detailed drawings are fully dimensioned for ease of framing. Exterior wall thicknesses vary by plan. If necessary, contact Design Basics to clarify the standard exterior wall thickness for the plan(s) you are interested in.
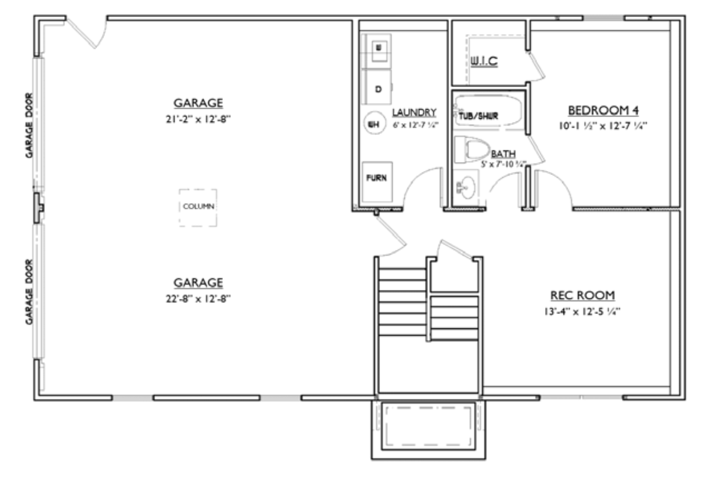
Second Level Floor Plan. Dimensioned and drafted to the same degree of detail as the main level floor plan*.
Electrical and Sections. Illustrated on a separate page for clarity, the electrical plan shows suggested electrical layout for the main and second level floor plans. Typical wall and stair sections are provided to further explain construction of these areas.
Full technical support is provided to purchasers of each plan to answer your plan-related questions.
*Plans are drafted to meet the Uniform Building Code or IRC (International Residential Code) at the time they are designed (contact us for more information). Because codes and requirements can change and may vary from jurisdiction to jurisdiction, the designers cannot warrant compliance with any specific code or regulation. All plans can be adapted to your local building codes and requirements. It is the responsibility of the purchaser and/or builder of each plan to see that the structure is built in strict compliance with all governing municipal codes (city, county, state, and federal)